Leírás
Bianca Plus 85 felsőszekrény, aida dió színben, jobbos nyitásirány
A Bianca Plus 85 felsőszekrény harmóniát teremt az Ön fürdőszobájában is!
A Bianca Plus bútor a mindennapok bútora. A bevált formák optimális helykihasználást és teljes használati komfortot biztosítanak, a széles forma és színválaszték pedig a garanciája annak, hogy mindenki megtalálja a saját stílusához, egyéniségéhez illő változatot.
A terméket összeszerelve szállítjuk így nem kell aggódnia az összeállítás miatt sem.
Minőségi, hazai gyártású Bianca Plus fürdőszoba bútorcsalád tagjai. A bútor frontja MDF vákum fóliás bevonattal is elvan látva ennek köszönhetően tökéletesen vízálló.
Termékjellemzők :
- Fogók : Fém ( klasszikus )
- Front (ajtó) : MDF
- Korpusz ( test ) : bútorlap
- Származási hely : 100% Magyar termék!
- Forgalmazó : Leziter Kft.
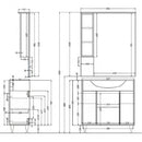
- Felső tükrös elem: 100x85x17,5 cm
A funkcionalitás mellett természetesen a bútor megjelenésére is nagy figyelmet fordítottak. Aida dió színének és klasszikus vonalainak köszönhetően harmóniát teremt az összes fürdőszoba hangulatában. A bútor anyaghasználatából adódóan (bútorlap) a korpusz oldal színe eltérhet a magasfényű MDF front színétől.
