Leírás
Bianca Plus 85 alsó szekrény mosdóval
A Bianca Plus 85 mosdószekrény harmóniát teremt az Ön fürdőszobájában is!
A fürdőszoba bútor kevés helyet foglal viszont tágas szekrénnyel és fiókkal rendelkezik ahol kényelmesen elférnek a fürdőszobai pipere eszközök. Kevés helyigénye miatt kisebb fürdőszobák berendezésére is alkalmas, például panel lakásokban. A termék magas minőségű bútorlapból készül és színben passzoló élzárókkal van ellátva. A fürdőszoba bútor mosdóval együtt kapható.
A terméket összeszerelve szállítjuk így nem kell aggódnia az összeállítás miatt sem.
A bútor frontja MDF vákum fóliás bevonattal is elvan látva ennek köszönhetően tökéletesen vízálló.
Termékjellemzők :
- Láb : állítható ABS króm lábak
- Fióktest : fém
- Fogók : Fém ( klasszikus )
- Front (ajtó) : MDF
- Korpusz ( test ) : bútorlap
- Származási hely : 100% Magyar termék!
- Forgalmazó : Leziter Kft.
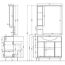
- Alsó rész mosdó nélkül : 82x82x33 cm (Mosdóval: 85x85x48 cm)
- Kerámia mosdó : 85x48 cm
A funkcionalitás mellett természetesen a bútor megjelenésére is nagy figyelmet fordítottak. Sonoma tölgy színének és klasszikus vonalainak köszönhetően harmóniát teremt az összes fürdőszoba hangulatában.
A csaptelep dekoráció, nem tartozéka a terméknek!
A bútor anyaghasználatából adódóan (bútorlap) a korpusz oldal színe eltérhet a magasfényű MDF front színétől.
